2105 / apartment with a curved wall
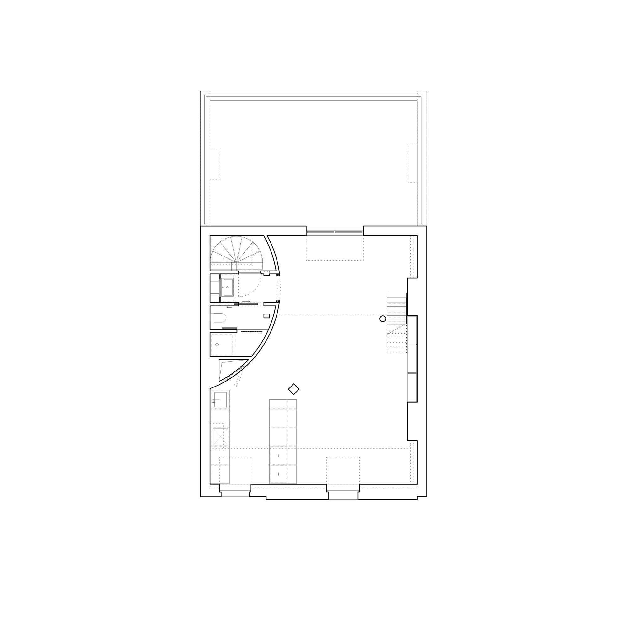
A single curved wall and a set of existing structural columns redefine the living space of a small penthouse apartment in Brussels.
- Location
- Brussels, Belgium
- Type
- Residential
- Status
- Built
- Surface
- 55m²
- Client
- Private
- Photographs
- Francisco Ascensāo